Z型往复式提升机

名称:Z型往复式提升机

详细信息

   Z型往复式提升机

品牌:宇跃自动化

   往复式提升机是一种使用较为广泛的楼层间输送的专业设备。该机的主要工作原理是利用四根闭合的链条传动,在链条上安装一台随着升降链反复升降的输送机

    属性说明:
  • *低端进出口高度:800
  • *大水平速度:20m/min
  • *大升降速度:60m/min
  •    Z型往复式提升机:往复式提升机是一种使用较为广泛的楼层间输送的专业设备。该机的主要工作原理是利用四根闭合的链条传动,在链条上安装一台随着升降链反复升降的输送机,货物由流水线或叉车送入到可升降的输送机上,升降机起动进行升降作业,升降到出口位置后刹车停机,由可升降的输送机将货物送出或进入其它输送线,该机由PLC系统控制,在控制设有自锁安全保护功能,外框架设有防护网,杜绝生产事故的发生。该机适用于各行业中的各种码垛产品,完全实现各楼层间自动化的进出,接入流水线的理想产品;同时也可以单项的配合叉车或手动液压车移动的大件托盘货物,将托盘货物送至入口处的输送线上,再在出口段的输送线取货物,中间的楼层升或降的环节均为自动化控制,显著的提高运载效率,降低了日常运营成本。

  •     机器的安全:特殊的光电及钢丝绳装置,同步提升机的轿厢运行轨迹,任何运行异常均可检测出来,针对正常安全运行时,如链条运行是否卡阻,松动、断裂,轿厢卡阻,倾斜,做到提前报警,提示检修功能,更不会造成轿厢坠落。 台车货物安全,线体上设多处光电开关,实时监测每个台车位置,避免造成台车在输送线上位置不清,碰撞等可能。人身的安全:整个输送线及提升机均密封或护栏形式有效的阻挡人的接触,避免对人身造成伤害。

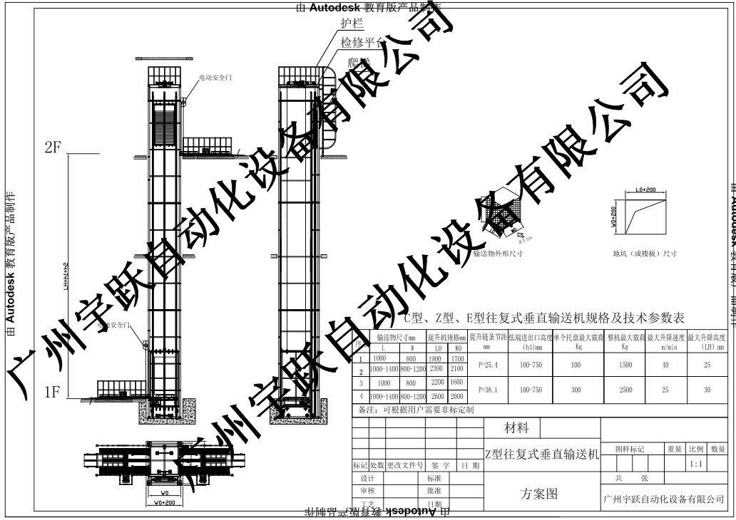
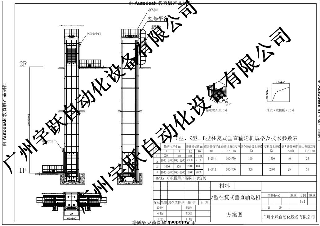
  • 附:技术方案图
  • 现场照片: